房屋设计图片(面宽10米,进深8米农村自建房,怎样设计比较好)
2022-08-26 07:42:10
摘要: 房屋设计图片(面宽10米,进深8米农村自建房,怎样设计比较好)...
你好,专注于农村自建房设计的新型房屋为你解答。面宽10m,进深8m,占地面积80㎡,比较狭窄,但对于农村来说,这是非常常见的宅基地了,新型房屋也设计过很多占地面积较小的户型,经济实用,还能做到小户型大空间,鉴于您没有明确说明建筑风格及建筑层数,在这里为您分享两套与您家宅基地尺寸比较符合的户型供您参考。
第一套
占地尺寸:10m×9.5m
占地面积:95㎡
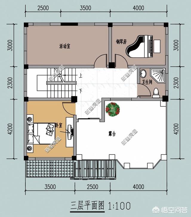
建筑层数:3层
一套欧式风格自建房户型,欧式风格一直以来因它的外观精美,室内布局合理收到很多建房者的喜爱,而这套户型,还加设了挑空落地窗及阳台,不仅不占房屋面积,还非常实用。
一层设了,1卧室、1客厅、1餐厅、1厨房、1备用房、1卫生间
二层设了,3卧室、1书房、1棋牌室、1起居室、1卫生间
三层设了,1卧室、1钢琴房、1活动室、1卫生间、1露台
第二套
占地尺寸:10m×8.98m
占地面积:99㎡
建筑层数:2层
一套欧式风格农村自建房户型,现在农村家家户户都会有台代步车,而车库就成为了必须,这套户型在不占用室外面积的情况下,在一楼设计了一个开放式车库,也不用担心爱车被风吹雨淋了。
一层设了,1客厅、1餐厅、1厨房、1卫生间、1车库
二层设了,3卧室、1书房、1卫生间、2阳台
关注本号,更多农村自建房户型。
